【No.G4094】銀座7丁目三原通りの新築ビル 6階

事務所

銀座7丁目三原通りの新築ビル

賃料(税込)
相談
共益費(税込)
賃料に含む
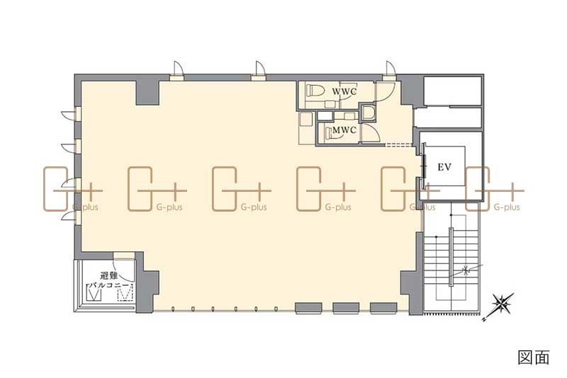
面積
31.80坪
所在地
中央区銀座7-11-14 地図を見る
物件管理No. G4094
物件名 銀座7丁目三原通りの新築ビル 6階
所在地 中央区銀座7-11-14 地図を見る
最寄り駅 「銀座」駅徒歩5分
「東銀座」駅徒歩5分
「新橋」駅徒歩8分
賃料(税込) 相談
共益費(税込) 賃料に含む
賃料+共益費(税込) 相談
面積 105.13m² (31.80坪)
坪単価(税込) 相談
保証金 賃料の12ヵ月分
契約年数 普通借家2年
募集階 6階
現況 建築中(入居日:相談)
構造 S造
規模 地上10階建
竣工 2025年11月末予定
通り名 銀座三原通り
取引形態 一般媒介
仲介手数料 賃料1ヶ月分+税
掲載日 2025-09-29
備考 ■現場協力金をご負担いただく可能性がございます。(調整中)
設備等 天井高:2,700mm
OAフロア:40mm
電気容量:50VA/㎡
床荷重:約500kg/㎡
その他 最上階にランチや休憩に使える「屋上デッキテラス」を設置

この物件のおすすめポイント

2025年11月竣工予定の新築ビル!銀座7丁目の三原通り沿いの物件で、周辺は落ち着いた環境です。
銀座駅や東銀座駅、新橋駅から徒歩圏内の便利な立地です。銀座の新築物件にオフィスを設けたい方へオススメ!是非ご検討下さい。

同じビルの他のフロア

物件No. 募集階 面積 賃料(税込) 用途 詳細
G4096 8階 105.13㎡
(31.80坪)
相談 オフィス 詳細を見る
G4142 9階 105.10㎡
(31.79坪)
相談 オフィス 詳細を見る

閉じる

閉じる