【No.G4142】銀座7丁目三原通りの新築ビル 9階
事務所| 物件管理No. | G4142 |
|---|---|
| 物件名 | 銀座7丁目三原通りの新築ビル 9階 |
| 所在地 | 中央区銀座7-11-14 地図を見る |
| 最寄り駅 | 「銀座」駅徒歩5分 「東銀座」駅徒歩5分 「新橋」駅徒歩8分 |
| 賃料(税込) | 相談 |
| 共益費(税込) | 賃料に含む |
| 賃料+共益費(税込) | 相談 |
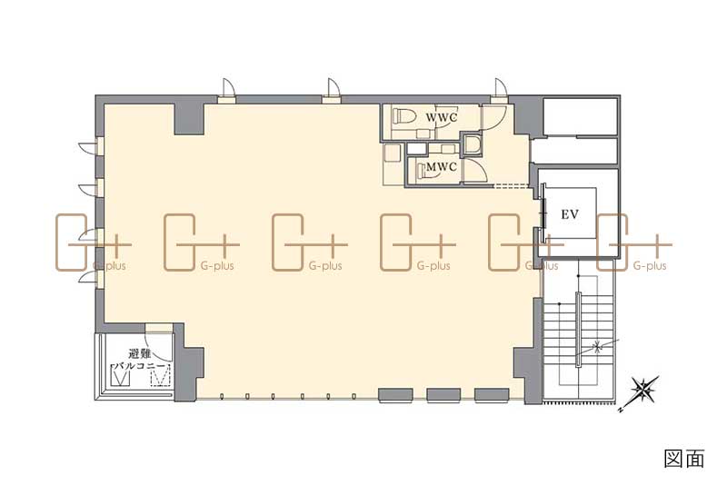
| 面積 | 105.10m² (31.79坪) |
| 坪単価(税込) | 相談 |
| 保証金 | 賃料の12ヵ月分 |
| 契約年数 | 普通借家2年 |
| 募集階 | 9階 |
|---|---|
| 現況 | 建築中(入居日:相談) |
| 構造 | S造 |
| 規模 | 地上10階建 |
| 竣工 | 2025年11月末予定 |
| 通り名 | 銀座三原通り |
| 取引形態 | 一般媒介 |
| 仲介手数料 | 賃料1ヶ月分+税 |
| 掲載日 | 2025-09-29 |
| 備考 | ■現場協力金をご負担いただく可能性がございます。(調整中) |
| 設備等 | 天井高:2,700mm OAフロア:40mm 電気容量:50VA/㎡ 床荷重:約500kg/㎡ |
| その他 | 最上階にランチや休憩に使える「屋上デッキテラス」を設置 |
この物件のおすすめポイント
2025年11月竣工予定の新築ビル!銀座7丁目の三原通り沿いの物件で、周辺は落ち着いた環境です。
銀座駅や東銀座駅、新橋駅から徒歩圏内の便利な立地です。銀座の新築物件にオフィスを設けたい方へオススメ!是非ご検討下さい。












