【No.G2614】銀座4丁目昭和通りの居抜き物件 地下1階
店舗 事務所| 物件管理No. | G2614 |
|---|---|
| 物件名 | 銀座4丁目昭和通りの居抜き物件 地下1階 |
| 所在地 | 中央区銀座4-10-3 地図を見る |
| 最寄り駅 | 「東銀座」駅徒歩1分 「銀座」駅徒歩3分 |
| 賃料(税込) | 相談 |
| 共益費(税込) | 賃料に含む |
| 賃料+共益費(税込) | 相談 |
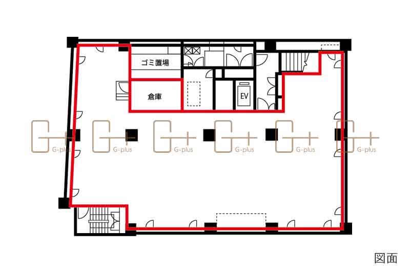
| 面積 | 250.60m² (75.81坪) |
| 坪単価(税込) | 相談 |
| 敷金 | 賃料の12ヵ月分 |
| 契約年数 | 定期借家7年 |
| 更新料 | 再契約料:新賃料の1ヵ月分 |
|---|---|
| 募集階 | 地下1階 |
| 現況 | 賃貸中 |
| 構造 | SRC造 |
| 規模 | 地下1階 地上10階建 |
| 竣工 | 1986年11月 |
| 通り名 | 昭和通り |
| 取引形態 | 一般媒介 |
| 仲介手数料 | 賃料1ヶ月分+税 |
| 掲載日 | 2025-11-21 |
| 備考 | 【償却】 契約期間5年未満償却15%(税別) 契約期間5年以上償却10%(税別) 【エントランス】 正面:平日8:00~22:00開、土日祝8:00~20:00開 通用口:平日7:30~22:00開、土日祝7:30~20:00開 ※時間外は通用口よりセキュリティカード操作 【店舗入口】 24時間出入り可能 ※営業時間は事前協議必須 ※ビル全館停電日除く 【日常清掃】 週5回(オフィスフロア水周り含む) |
| 設備等 | EV:2基(店舗区画は1基) 光ケーブル:MDF迄引き込み済み 警備:機械警備BILCOM 階高:3,750mm 天井高:2,700mm※想定 |
| その他 | 内装マネジメント費:㎡あたり4,000円(税別) 保証会社・火災保険:加入必須 用途:店舗(飲食相談可)+倉庫 引渡状態:カフェ+物販居抜き又はスケルトン 造作譲渡代:500万円(税別) ※金銭授受及び造作譲渡契約はテナント同士で対応いただきます 入居可能日:相談(居抜き引渡しの場合、2026年8月末までの成約必須) 面積:店舗72.49坪/239.635㎡+倉庫3.32坪/10.965㎡ 不可業種:風営法・遊技場・クリニック(全般) 【360度カメラ】 居抜き仕様 スケルトン仕様 |
この物件のおすすめポイント
カフェ×物販×教室×オフィス!4業態対応のフレキシブル区画です。2026年8月末日までの成約限定で居抜きのご相談が可能!
最寄りの都営地下鉄浅草線「東銀座」駅から徒歩1分!東京メトロ銀座線「銀座」駅からも徒歩3分です。
銀座で広々としたサイズの居抜き物件をお探しの方必見!業種はご相談下さい。








