【No.S1664】西新橋1丁目メゾネットタイプ 3階~5階
事務所| 物件管理No. | S1664 |
|---|---|
| 物件名 | 西新橋1丁目メゾネットタイプ 3階~5階 |
| 所在地 | 港区西新橋1-22-4 地図を見る |
| 最寄り駅 | 「虎ノ門」駅徒歩3分 「新橋」駅徒歩7分 「内幸町」駅徒歩4分 |
| 賃料(税込) | 363,000円 |
| 管理費(税込) | 22,000円 |
| 賃料+管理費(税込) | 385,000円 |
| 面積 | 87.02m² (26.32坪) |
| 坪単価(税込) | 13,790円 |
| 敷金 | 賃料の2ヵ月分 |
| 礼金 | 賃料の1ヵ月分 |
| 償却 | 賃料の1ヵ月分 |
| 契約年数 | 定期借家2年 |
| 更新料 | 再契約料:新賃料の1ヵ月分 |
|---|---|
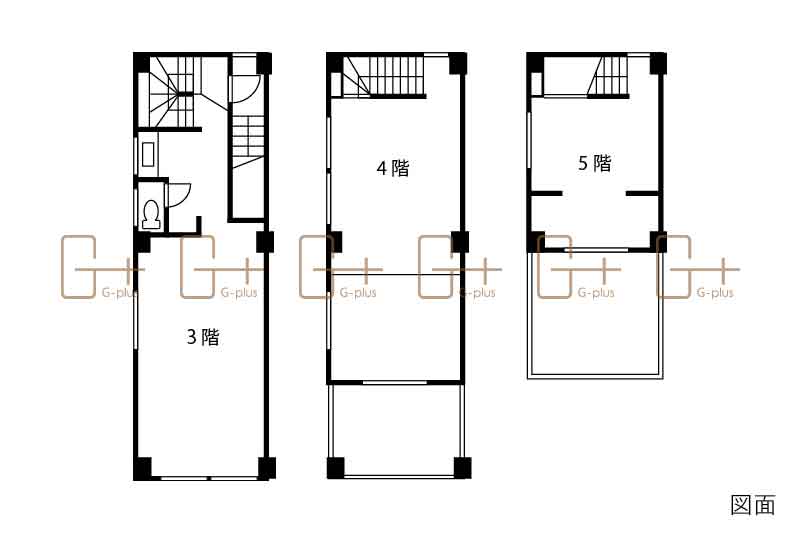
| 募集階 | 3階~5階 |
| 現況 | 空室(入居日:2025年11月上旬) |
| 構造 | RC造 |
| 規模 | 地上5階建 |
| 竣工 | 1974年(昭和49年)7月 |
| 取引形態 | 一般媒介 |
| 仲介手数料 | 賃料1ヶ月分+税 |
| 掲載日 | 2025-10-20 |
| 備考 | 保証会社・保険:要加入 解約予告:3ヵ月前 鍵交換費用:あり |
| 設備等 | エアコン トイレ |
この物件のおすすめポイント
複数路線利用可能!虎ノ門ヒルズから徒歩3分の場所にあるオフィス物件です。
3階・4階・5階のメゾネットタイプで、ルーフバルコニーが付いております。
周辺は静かで落ち着いた環境ですのでお仕事にオススメです。






