【No.S2561】新橋メゾネットタイプの貸事務所 6階+7階
事務所| 物件管理No. | S2561 |
|---|---|
| 物件名 | 新橋メゾネットタイプの貸事務所 6階+7階 |
| 所在地 | 港区新橋6-12-8 地図を見る |
| 最寄り駅 | 「新橋」駅徒歩8分 「御成門」駅徒歩3分 |
| 賃料(税込) | 430,100円 |
| 共益費(税込) | 賃料に含む |
| 賃料+共益費(税込) | 430,100円 |
| 面積 | 76.03m² (23.00坪) |
| 坪単価(税込) | 18,700円 |
| 敷金 | 賃料の6ヵ月分 |
| 償却 | 賃料の2ヵ月分 |
| 契約年数 | 普通借家2年 |
| 更新料 | 新賃料の1ヵ月分 |
|---|---|
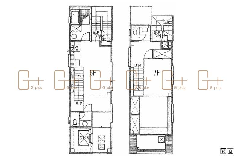
| 募集階 | 6階+7階 |
| 現況 | 賃貸中(入居時期:2026年5月下旬予定) |
| 構造 | 鉄骨造 |
| 規模 | 地上7階建 |
| 竣工 | 1990年(平成2年)7月 |
| 取引形態 | 一般媒介 |
| 仲介手数料 | 賃料1ヶ月分+税 |
| 掲載日 | 2026-05-13 |
| 備考 | 2025年エレベーター新規入替 |
| 設備等 | 24時間使用可 エレベーター 個別空調 光ファイバー |
この物件のおすすめポイント
新橋6丁目にある白い外観が特徴的な事務所物件。竣工は平成2年で新耐震基準適合の建物です。
珍しい6階+7階のメゾネットタイプ!駅からも近く、通勤がしやすい環境です。
周辺はオフィス街のため、お仕事に集中したい方へオススメ!是非ご検討下さい。






