【No.S2522】新橋赤レンガ通りの貸事務所 5階
事務所| 物件管理No. | S2522 |
|---|---|
| 物件名 | 新橋赤レンガ通りの貸事務所 5階 |
| 所在地 | 港区新橋2-9-16 地図を見る |
| 最寄り駅 | 「新橋」駅徒歩3分 「内幸町」駅徒歩3分 |
| 賃料(税込) | 697,928円 |
| 共益費(税込) | 95,172円 |
| 賃料+共益費(税込) | 793,100円 |
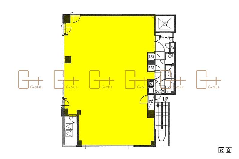
| 面積 | 95.36m² (28.84坪) |
| 坪単価(税込) | 24,200円 |
| 敷金 | 賃料の6ヵ月分 |
| 契約年数 | 定期借家5年(再契約可) |
| 募集階 | 5階 |
|---|---|
| 構造 | 鉄骨鉄筋コンクリート造 |
| 規模 | 地下1階 地上9階建 |
| 竣工 | 2005年2月 |
| 取引形態 | 一般媒介 |
| 仲介手数料 | 賃料1ヶ月分+税 |
| 掲載日 | 2026-04-10 |
| 設備等 | 天井高:2,600mm 床荷重:300kg/㎡ 空調:個別空調 電気:高圧引込350kVA(6,600V) 照明:天井埋込型照明 光ファイバー:MDFまで引込み エレベーター:1基(9人乗) トイレ:男女別(洋式) セキュリティ:機械警備、24時間入退館可能 |
| その他 | 諸条件・フリーレント応相談 |
この物件のおすすめポイント
ガラス張りの外観が特徴的!新橋2丁目の赤レンガ通りに面する事務所物件です。
各駅からアクセスしやすく、通勤も便利。周辺はオフィスや飲食店等が立ち並ぶ環境です。新橋アドレスに事務所を設けたい方はいかがでしょうか。
同じビルの他のフロア
| 物件No. | 募集階 | 面積 | 賃料(税込) | 用途 | 詳細 |
|---|---|---|---|---|---|
| S2523 | 9階 | 65.32㎡ (19.75坪) |
543,125円 | オフィス | 詳細を見る |












