【No.S2518】新橋3丁目のゆったりした貸事務所 7階
事務所| 物件管理No. | S2518 |
|---|---|
| 物件名 | 新橋3丁目のゆったりした貸事務所 7階 |
| 所在地 | 港区新橋3-4-5 地図を見る |
| 最寄り駅 | 「新橋」駅徒歩6分 |
| 賃料(税込) | 1,280,664円 |
| 共益費(税込) | - |
| 賃料+共益費(税込) | 1,280,664円 |
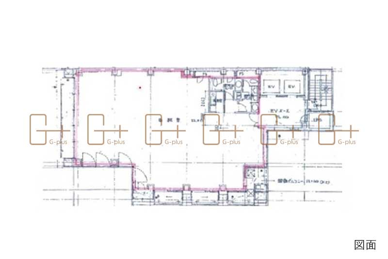
| 面積 | 174.97m² (52.92坪) |
| 坪単価(税込) | 24,200円 |
| 敷金 | 賃料の10ヵ月分 |
| 契約年数 | 普通借家2年 |
| 募集階 | 7階 |
|---|---|
| 現況 | 賃貸中(入居日:2026年2月7日) |
| 構造 | 鉄骨鉄筋コンクリート造 |
| 規模 | 地下2階 地上10階建 |
| 竣工 | 1993年3月 |
| 取引形態 | 一般媒介 |
| 仲介手数料 | 賃料1ヶ月分+税 |
| 掲載日 | 2026-02-02 |
| 備考 | 産業廃棄物処理費用有 フリーレント相談 |
| 設備等 | EV:2基(9名乗・積載量600kg) 空調方式:個別空調 床仕様:OAフロア(50mm) 床荷重:300kg/㎡ 天井高:2,390mm 警備体制:24時間機械警備 |
| その他 | 平置き小型車駐車場2台分空き有(32,500円/税別/台) 大型車1台分(65,000円/税別)※サイズ現地確認 |
この物件のおすすめポイント
日比谷通りや環ニ通りから少し入った場所にあるキレイな建物。周辺は閑静なオフィス街。
開放感のあるエントランスは来客者へ良い印象を与えます。広々した間取りも魅力的!24時間機械警備ですので安心してご利用いただけます。







