【No.S2476】東新橋1丁目大型オフィス 1階
事務所| 物件管理No. | S2476 |
|---|---|
| 物件名 | 東新橋1丁目大型オフィス 1階 |
| 所在地 | 港区東新橋1-1-21 地図を見る |
| 最寄り駅 | 「新橋」駅徒歩5分 「御成門」駅徒歩5分 |
| 賃料(税込) | 4,268,110円 |
| 共益費(税込) | 賃料に含む |
| 賃料+共益費(税込) | 4,268,110円 |
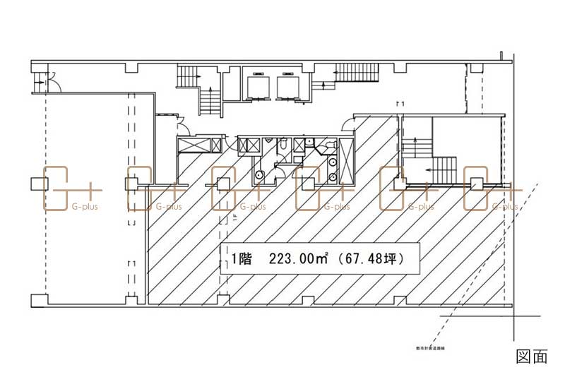
| 面積 | 223.07m² (67.48坪) |
| 坪単価(税込) | 63,250円 |
| 保証金 | 賃料の10ヵ月分 |
| 償却 | 解約時賃料の1ヵ月分 |
| 契約年数 | 普通借家2年 |
| 募集階 | 1階 |
|---|---|
| 現況 | 空室 |
| 構造 | 鉄骨鉄筋コンクリート造 |
| 規模 | 地下1階 地上9階建 |
| 竣工 | 1964年(昭和39年) |
| 取引形態 | 一般媒介 |
| 仲介手数料 | 賃料1ヶ月分+税 |
| 掲載日 | 2026-04-03 |
| 備考 | ・火災保険要加入 ・保証会社要加入(月額固定費1ヵ月分) ・24時間使用可能 |
| 設備等 | エレベーター2基 OAフロア 個別空調 室外男女別トイレ 有人+機械警備 |
この物件のおすすめポイント
新橋駅及び御成門駅から徒歩5分!駅近で通勤に便利な立地です。
汐留シティセンタービルのすぐ横で、銀座へも徒歩圏内!エントランスやトイレをリニューアルしており、メンテナンスが行き届いています。
大型オフィスをお探しの方へオススメです。












