【No.S0320】ル・グラシエルBLDG.5 2階

事務所

ル・グラシエルBLDG.5

賃料(税込)
356,400円
共益費(税込)
89,100円
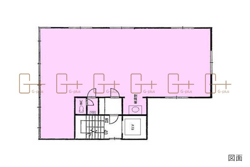
面積
27.00坪
所在地
港区新橋5-20-1 地図を見る

物件詳細

物件管理No. S0320
物件名 ル・グラシエルBLDG.5 2階
所在地 港区新橋5-20-1 地図を見る
最寄り駅 「御成門」駅徒歩6分
「新橋」駅徒歩9分
「汐留」駅徒歩10分
賃料(税込) 356,400円
共益費(税込) 89,100円
賃料+共益費(税込) 445,500円
面積 89.26m² (27.00坪)
坪単価(税込) 13,200円
保証金 賃料・共益費の5ヵ月分~
償却 退去時2ヵ月分
契約年数 普通借家2年
更新料 新賃料・共益費の1ヵ月分
募集階 2階
現況 賃貸中(2026年7月上旬入居可)
構造 鉄筋コンクリート造陸屋根
規模 地上6階建
竣工 1974年1月
取引形態 一般媒介
仲介手数料 賃料1ヶ月分+税
掲載日 2026-04-27
備考 保証会社加入必須(初回保証料あり)
預り水道光熱費:150,000円
案内板作成費:10,000円(税別)
鍵交換代:25,000円(税別)/1箇所
解約予告:3ヵ月前
設備等 エレベーター
エアコン
トイレ
その他 店舗相談可(諸条件変更あり)

この物件のおすすめポイント

新橋5丁目の閑静な場所にある賃貸事務所。御成門駅や新橋駅、汐留駅から徒歩圏内です。
少し歩けば新橋の繁華街ですのでランチやディナーには困りません。
現在賃貸中ですが内見可能です。ご希望の方は事前に候補日をお知らせ下さい。

閉じる

閉じる