【No.S0169】新橋5丁目のアクセス良好オフィス 5階
事務所| 物件管理No. | S0169 |
|---|---|
| 物件名 | 新橋5丁目のアクセス良好オフィス 5階 |
| 所在地 | 港区新橋5-7-8 地図を見る |
| 最寄り駅 | 「御成門」駅徒歩4分 「新橋」駅徒歩7分 |
| 賃料(税込) | 443,212円 |
| 共益費(税込) | 賃料に含む |
| 賃料+共益費(税込) | 443,212円 |
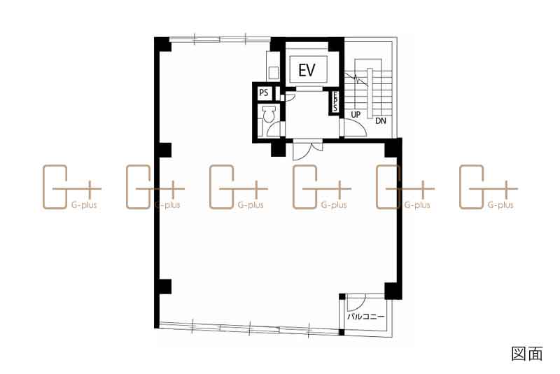
| 面積 | 95.14m² (28.78坪) |
| 坪単価(税込) | 15,400円 |
| 敷金 | 賃料の10ヵ月分 |
| 償却 | 賃料の1ヵ月分 |
| 契約年数 | 普通借家2年 |
| 更新料 | 新賃料の1ヵ月分 |
|---|---|
| 募集階 | 5階 |
| 構造 | S造 |
| 規模 | 地上9階建 |
| 竣工 | 1988年(昭和63年)7月 |
| 取引形態 | 一般媒介 |
| 仲介手数料 | 賃料1ヶ月分+税 |
| 掲載日 | 2026-01-19 |
| 設備等 | 空調設備:個別空調 セキュリティ:機械警備 エレベーター:1基 通信:光ファイバー 天井高:2,450mm 駐車場:なし |
この物件のおすすめポイント
都営三田線「御成門」駅、東京メトロ銀座線「新橋」駅が利用可能でアクセス便利!9階建の白いオフィスで視認性◎!
周辺はオフィスが多数あり、近くに公園があるため長閑な環境です。落ち着いてお仕事されたい方へオススメです。





