【No.G4288】銀座8丁目中央通りの貸事務所 5階
事務所| 物件管理No. | G4288 |
|---|---|
| 物件名 | 銀座8丁目中央通りの貸事務所 5階 |
| 所在地 | 中央区銀座8-9-15 地図を見る |
| 最寄り駅 | 「銀座」駅徒歩5分 「新橋」駅徒歩4分 |
| 賃料(税込) | 371,800円 |
| 共益費(税込) | 57,200円 |
| 賃料+共益費(税込) | 429,000円 |
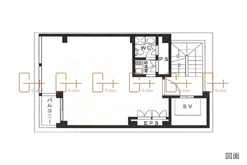
| 面積 | 42.97m² (13.00坪) |
| 坪単価(税込) | 28,600円 |
| 敷金 | 賃料の6ヵ月分 |
| 償却 | 賃料の1ヵ月分(契約締結時償却) |
| 契約年数 | 定期借家3年 |
| 募集階 | 5階 |
|---|---|
| 現況 | 賃貸中(入居日:2026年6月1日予定) |
| 構造 | 鉄骨鉄筋コンクリート造 |
| 規模 | 地下1階 地上10階建 |
| 竣工 | 2005年(平成17年)9月 |
| 通り名 | 中央通り |
| 取引形態 | 一般媒介 |
| 仲介手数料 | 賃料1ヶ月分+税 |
| 掲載日 | 2026-03-11 |
| 備考 | 解約予告:3ヵ月前 引渡状態:事務所仕様 保証会社:加入必須 店舗使用:不可 |
| 設備等 | エレベーター 個別空調 機械警備 OAフロア・タイルカーペット 専用トイレ 電気温水器 ブラインド |
この物件のおすすめポイント
人通り抜群の中央通り沿いに位置する貸事務所。昼夜問わず賑やかなエリアです。
銀座駅及び新橋駅から徒歩圏内!銀座の好立地にオフィスを構えたい方へオススメです。





