【No.G4239】銀座1丁目昭和通りの貸オフィス 10階

事務所

銀座1丁目昭和通りの貸オフィス

賃料(税込)
相談
共益費(税込)
賃料に含む
面積
22.02坪
所在地
中央区銀座1-14-7 地図を見る
物件管理No. G4239
物件名 銀座1丁目昭和通りの貸オフィス 10階
所在地 中央区銀座1-14-7 地図を見る
最寄り駅 「銀座一丁目」駅徒歩3分
「東銀座」駅徒歩4分
「銀座」駅徒歩1分
賃料(税込) 相談
共益費(税込) 賃料に含む
賃料+共益費(税込) 相談
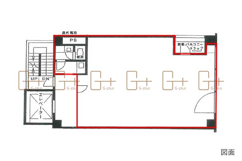
面積 72.79m² (22.02坪)
坪単価(税込) 相談
保証金 賃料の10ヵ月分
契約年数 普通借家3年
更新料 新賃料の1ヵ月分
募集階 10階
現況 賃貸中(入居日:2026年7月)
構造 鉄骨鉄筋コンクリート造
規模 地下1階 地上10階建
竣工 1985年7月
通り名 昭和通り
取引形態 一般媒介
仲介手数料 賃料1ヶ月分+税
掲載日 2026-01-27
備考 トイレ増設可能。増設の場合は賃料増額となります。(詳細相談)
設備等 空調個別パッケージ方式
エレベーター1基
床荷重300kg/㎡
天井高2320mm
床仕様2ウェイフロアダクト
機械警備24時間
光ファイバーMDFまで引込済

この物件のおすすめポイント

東京メトロ有楽町線「銀座一丁目」駅徒歩3分!銀座1丁目の昭和通り沿いに位置するオフィスビルです。
東銀座駅や銀座駅からも徒歩圏内!普通借家契約のため長く借りたい方へもオススメです。近くには郵便局があり、お仕事に便利です。

閉じる

閉じる