【No.G4191】みゆき通り×三原通りの角地ビル 9階
店舗| 物件管理No. | G4191 |
|---|---|
| 物件名 | みゆき通り×三原通りの角地ビル 9階 |
| 所在地 | 中央区銀座5-9-11 地図を見る |
| 最寄り駅 | 「銀座」駅徒歩2分 「東銀座」駅徒歩2分 「銀座一丁目」駅徒歩5分 「有楽町」駅徒歩8分 |
| 賃料(税込) | 1,767,194円 |
| 管理費(税込) | 143,286円 |
| 賃料+管理費(税込) | 1,910,480円 |
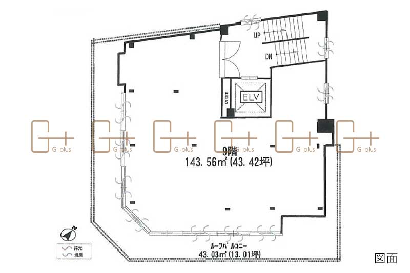
| 面積 | 143.56m² (43.42坪) |
| 坪単価(税込) | 40,700円 |
| 保証金 | 賃料の12ヵ月分 |
| 償却 | 賃料の1ヵ月分 |
| 契約年数 | 普通借家2年 |
| 更新料 | 新賃料の1ヵ月分 |
|---|---|
| 募集階 | 9階 |
| 現況 | 賃貸中(入居日:2026年5月上旬)前倒し別途相談 |
| 構造 | SRC造 |
| 規模 | 地下1階 地上9階建 |
| 竣工 | 1958年 |
| 通り名 | みゆき通り 銀座三原通り |
| 取引形態 | 一般媒介 |
| 仲介手数料 | 賃料1ヶ月分+税 |
| 掲載日 | 2026-03-02 |
| 備考 | 別途看板・ルーフバルコニー使用料がございます。 |
| 設備等 | エレベーター1基 引渡し:スケルトン |
| その他 | 【テナント構成】 B1階:居酒屋、バー 1階:中華料理店 2階:居酒屋 3階:クリニック 4階:お茶教室 5階~7階:カラオケ店 8階:募集中 9階:募集中 |
この物件のおすすめポイント
銀座5丁目のみゆき通り×三原通りの角地に位置する好立地ビル!現在カラオケ店が入居中。引渡しはスケルトンの予定です。
立地重視でお探しの方へオススメです。業種のご相談だけでもお気軽にお問い合わせ下さい。
同じビルの他のフロア
| 物件No. | 募集階 | 面積 | 賃料(税込) | 用途 | 詳細 |
|---|---|---|---|---|---|
| G4190 | 8階 | 186.20㎡ (56.32坪) |
2,292,224円 | 店舗 | 詳細を見る |






