【No.G4177】銀座柳通り×木挽町仲通り貸事務所 6階
事務所| 物件管理No. | G4177 |
|---|---|
| 物件名 | 銀座柳通り×木挽町仲通り貸事務所 6階 |
| 所在地 | 中央区銀座2-12-3 地図を見る |
| 最寄り駅 | 「銀座一丁目」駅徒歩2分 「東銀座」駅徒歩4分 |
| 賃料(税込) | 669,504円 |
| 共益費(税込) | 83,688円 |
| 賃料+共益費(税込) | 753,192円 |
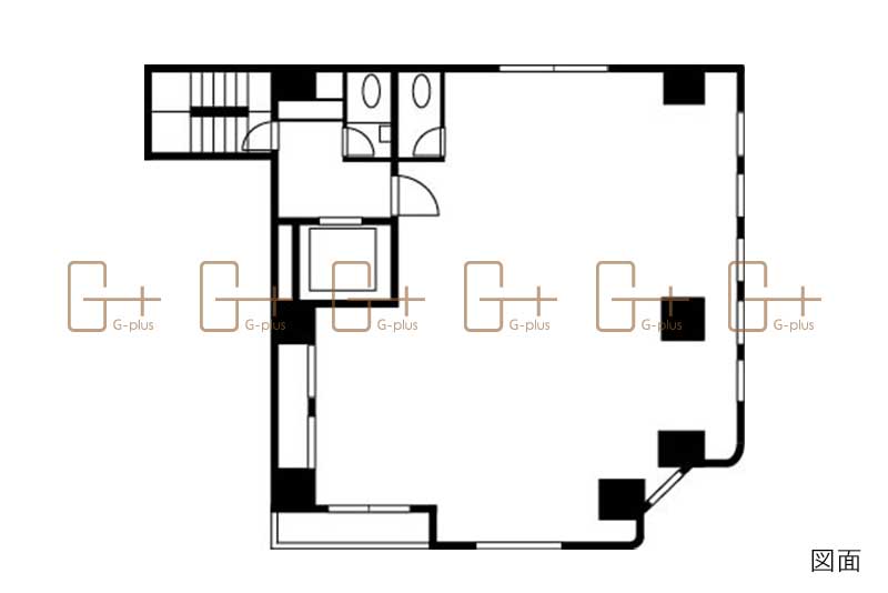
| 面積 | 125.75m² (38.04坪) |
| 坪単価(税込) | 17,600円 |
| 保証金 | 賃料の5ヵ月分 |
| 償却 | 賃料の1ヵ月分 |
| 契約年数 | 普通借家2年 |
| 更新料 | 新賃料の1ヵ月分 |
|---|---|
| 募集階 | 6階 |
| 現況 | 空室 |
| 構造 | 鉄骨鉄筋コンクリート造 |
| 規模 | 地下1階 地上9階建 |
| 竣工 | 1989年7月 |
| 通り名 | 木挽町仲通り 銀座柳通り |
| 取引形態 | 一般媒介 |
| 仲介手数料 | 賃料1ヶ月分+税 |
| 掲載日 | 2026-04-30 |
| 備考 | ■契約の際には、指定会社と保証委託契約を締結していただきます。 ※与信状況によって保証金額が変動する場合がございます。 |
| 設備等 | EV:1基(9人乗) 天井高:2470㎜ 床仕様:OAフロア 空調:個別空調 トイレ:専用・男女別・洋式 セキュリティ:機械警備 |
この物件のおすすめポイント
銀座2丁目の柳通り×木挽町仲通り角地に位置する貸事務所物件。各駅からアクセスしやすく、利便性◎!
ブラウンの外観が特徴的です。窓面が大きく明るい室内!周辺は閑静で落ち着いてお仕事をされたい方へオススメ!







