【No.G4165】松屋銀座裏手の貸事務所 4階
事務所| 物件管理No. | G4165 |
|---|---|
| 物件名 | 松屋銀座裏手の貸事務所 4階 |
| 所在地 | 中央区銀座3-8-16 地図を見る |
| 最寄り駅 | 「銀座」駅徒歩2分 |
| 賃料(税込) | 110,000円 |
| 共益費(税込) | - |
| 賃料+共益費(税込) | 110,000円 |
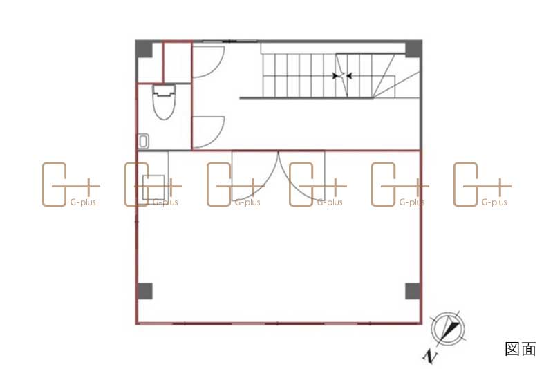
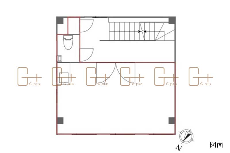
| 面積 | 20.66m² (6.25坪) |
| 坪単価(税込) | 17,600円 |
| 保証金 | 賃料の8ヵ月分 |
| 契約年数 | 定期借家3年 |
| 更新料 | 再契約料:新賃料の1ヵ月分 |
|---|---|
| 募集階 | 4階 |
| 現況 | 賃貸中(入居日:2026年7月1日) |
| 構造 | 鉄筋コンクリート造 |
| 規模 | 地上5階建 |
| 竣工 | 1963年6月 |
| 通り名 | 銀座三原通り |
| 取引形態 | 一般媒介 |
| 仲介手数料 | 賃料1ヶ月分+税 |
| 掲載日 | 2026-04-08 |
| 備考 | 保証会社加入必須 |
| 設備等 | 個別空調 天井高2,800mm エレベーター無し |
| その他 | エントランスリニューアル済み |
この物件のおすすめポイント
松屋銀座の裏手に位置するオフィス物件です。
東京メトロ日比谷線・丸ノ内線・銀座線「銀座」駅より徒歩2分!
エレベーターはありませんが、お手頃な賃料のため費用を抑えたい方へオススメです。物件の資料だけでもお気軽にお問い合わせ下さい。










