【No.G4147】GINZA HOUSE Floor3
店舗 事務所| 物件管理No. | G4147 |
|---|---|
| 物件名 | GINZA HOUSE Floor3 |
| 所在地 | 中央区銀座1-21-13 地図を見る |
| 最寄り駅 | 「銀座」駅徒歩9分 「京橋」駅徒歩9分 「東銀座」駅徒歩7分 「銀座一丁目」駅徒歩7分 「宝町」駅徒歩6分 |
| 賃料(税込) | 271,000円 |
| 共益費(税込) | 10,000円 |
| 賃料+共益費(税込) | 281,000円 |
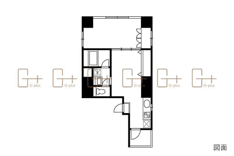
| 面積 | 42.24m² (12.78坪) |
| 坪単価(税込) | 21,209円 |
| 敷金 | 賃料の1ヵ月分(ビジネス利用の場合は要相談) |
| 礼金 | 賃料の1ヵ月分 |
| 契約年数 | 定期借家2年 |
| 募集階 | 3階 |
|---|---|
| 現況 | 空室 |
| 構造 | RC造 |
| 規模 | 地上10階建 |
| 竣工 | 2019年(令和1年) |
| 通り名 | 木挽町仲通り |
| 取引形態 | 一般媒介 |
| 仲介手数料 | 賃料1ヶ月分+税 |
| 掲載日 | 2026-01-26 |
| 備考 | ■SOHO相談可(事務所相談。課税不可) ■ペット相談可(小型犬または小型猫、1匹のみ) ■保証会社加入必須、初回保証料:総賃料(月額賃料+管理費)の50%~100%、年次保証料:10,000円/年 収納手数料:330円/月 ■くらしーど24:16,500円/2年 ■解約予告:2ヵ月前 ■退去時ルームクリーニング費用借主負担 ■火災保険:15,000円/2年 ■鍵交換:任意 ■業種により条件変更あり |
| 設備等 | 駐輪場:なし |
| その他 | ※室内写真は別フロアのものです。 |
この物件のおすすめポイント
SOHO相談可!2019年7月竣工の築浅マンションです。周辺は落ち着いた環境で住居に最適です。
複数路線利用可能の便利な物件。1フロア1世帯で快適にご利用いただけます。まずは物件の資料だけでもお気軽にお問い合わせ下さい。



















