【No.G3774】中央市場通り×演舞場通り貸事務所 5階
事務所| 物件管理No. | G3774 |
|---|---|
| 物件名 | 中央市場通り×演舞場通り貸事務所 5階 |
| 所在地 | 中央区銀座7-17-11 地図を見る |
| 最寄り駅 | 「東銀座」駅徒歩5分 「築地市場」駅徒歩1分 「新橋」駅徒歩10分 |
| 賃料(税込) | 404,745円 |
| 共益費(税込) | 80,949円 |
| 賃料+共益費(税込) | 485,694円 |
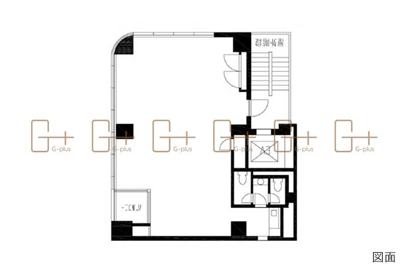
| 面積 | 81.10m² (24.53坪) |
| 坪単価(税込) | 16,500円 |
| 保証金 | 賃料の6ヵ月分 |
| 償却 | 解約時保証金の10% |
| 契約年数 | 普通借家2年 |
| 更新料 | 新賃料の1ヵ月分 |
|---|---|
| 募集階 | 5階 |
| 現況 | 賃貸中(入居日:2026年2月1日以降) |
| 構造 | 鉄骨造 |
| 規模 | 地上9階建 |
| 竣工 | 1992年3月25日 |
| 取引形態 | 一般媒介 |
| 仲介手数料 | 賃料1ヶ月分+税 |
| 掲載日 | 2026-01-20 |
| 備考 | 保証会社相談 |
| 設備等 | 個別空調(ヒートポンプ方式) EV1基(9人乗り) 機械警備、光回線(MDF) OA床 男女別WC(室内) ウォシュレット |
この物件のおすすめポイント
銀座7丁目の中央市場通り×演舞場通り角地に位置する事務所物件。周辺は落ち着いた環境でお仕事に最適です。
最寄りの都営大江戸線「築地市場」駅A3番出口徒歩1分!銀座アドレスでオフィス物件をお探しの方はいかがでしょうか。











