【No.G3610】銀座7丁目中央通りの好立地ビル 5階
店舗| 物件管理No. | G3610 |
|---|---|
| 物件名 | 銀座7丁目中央通りの好立地ビル 5階 |
| 所在地 | 中央区銀座7-9-15 地図を見る |
| 最寄り駅 | 「銀座」駅徒歩5分 「有楽町」駅徒歩10分 「新橋」駅徒歩6分 |
| 賃料(税込) | 6,050,000円 |
| 共益費(税込) | 賃料に含む |
| 賃料+共益費(税込) | 6,050,000円 |
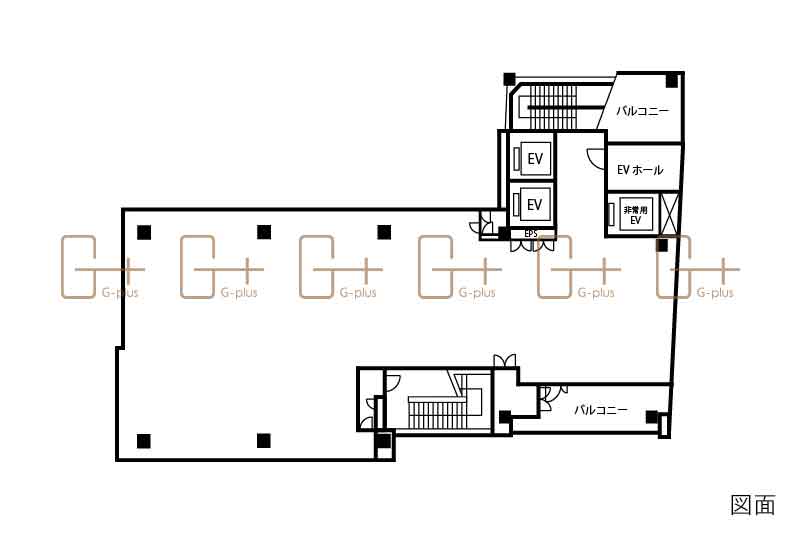
| 面積 | 326.25m² (98.69坪) |
| 坪単価(税込) | 61,303円 |
| 敷金 | 賃料の12ヵ月分 |
| 契約年数 | 定期借家5年 |
| 募集階 | 5階 |
|---|---|
| 現況 | 空室 |
| 構造 | 鉄筋コンクリート造・鉄骨造 |
| 規模 | 地下2階 地上12階建 |
| 竣工 | 2008年(平成20年)7月 |
| 通り名 | 中央通り |
| 取引形態 | 一般媒介 |
| 仲介手数料 | 賃料1ヶ月分+税 |
| 掲載日 | 2026-01-06 |
| 備考 | ・保証会社:加入必須(貸主指定) ・内覧:事前予約制(前日までに受付)平日10時~18時 ・業態 :サービス(美容クリニック・エステ等) ※重飲食相談可(用途変更要:テナント負担) ・営業時間 : 相談可 ・不解約期間:3年間 |
| 設備等 | EV:3基 引渡し:スケルトン 階高:4,400mm 天井高:3,000mm |
この物件のおすすめポイント
銀座のメインストリートである中央通り沿い!2008年竣工のキレイでオシャレな商業ビルです。
常にたくさんの人が行き交っており、集客力◎!立地重視でお探しの方へオススメです。まずは業種のご相談だけでもお気軽にお問い合わせ下さい。










