【No.G3239】美容関係最適アートビルディング 8階

店舗 事務所

美容関係最適アートビルディング

賃料(税込)
1,576,872円
共益費(税込)
-
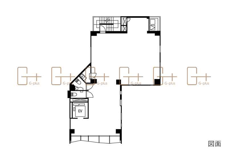
面積
39.82坪
所在地
中央区銀座1-6-8 地図を見る
物件管理No. G3239
物件名 美容関係最適アートビルディング 8階
所在地 中央区銀座1-6-8 地図を見る
最寄り駅 「有楽町」駅徒歩5分
「銀座一丁目」駅徒歩1分
「銀座」駅徒歩5分
「京橋」駅徒歩3分
賃料(税込) 1,576,872円
共益費(税込) -
賃料+共益費(税込) 1,576,872円
面積 131.64m² (39.82坪)
坪単価(税込) 39,600円
保証金 賃料の8ヵ月分
礼金 賃料の1ヵ月分
償却 賃料の2ヵ月分
契約年数 定期借家3年
更新料 再契約料:新賃料の1ヵ月分
看板料(税込) 22,000円
募集階 8階
現況 賃貸中(入居日:相談)
構造 S造
規模 地上9階建
竣工 平成25年2月15日
通り名 銀座ガス灯通り
取引形態 一般媒介
仲介手数料 賃料1ヶ月分+税
掲載日 2026-02-18
備考 保証会社:加入必須
設備等 EV1基(11人定員・各階不停止)
機械警備
専用ゴミ置き場
光ケーブル
ガス
天井高:2,900mm
電力:電灯75A動力100A
個別空調2系統
電気温水器
トイレ(多目的トイレ+一般トイレ)
床仕上:OAフロア・タイルカーペット
その他 <テナント構成>
1F宝飾店
2Fヘアサロン
3F美容外科
4F美容外科クリニック
5F美容外科美容皮膚科
6F美容皮膚科
7Fヘアサロン
8F募集区画
9F美容皮膚科

この物件のおすすめポイント

美容関係に最適!季節・イベント時に色を変えるアルゴリズム形状のカーテンウォールです。
現在賃貸中で、事務所仕様での引渡し予定です。銀座でオシャレなお店をオープンされたい方へオススメの物件!是非ご検討下さい。

同じビルの他のフロア

物件No. 募集階 面積 賃料(税込) 用途 詳細
G2363 5階 131.64㎡
(39.82坪)
1,576,872円 店舗オフィス 詳細を見る

閉じる

閉じる