【No.G3106】銀座誠和ビル 301号室
店舗物件管理No. | G3106 |
---|---|
物件名 | 銀座誠和ビル 301号室 |
所在地 | 中央区銀座7-6-9 地図を見る |
最寄り駅 | 「銀座」駅徒歩5分 「新橋」駅徒歩6分 |
賃料(税込) | 594,000円 |
共益費(税込) | 59,400円 |
賃料+共益費(税込) | 653,400円 |
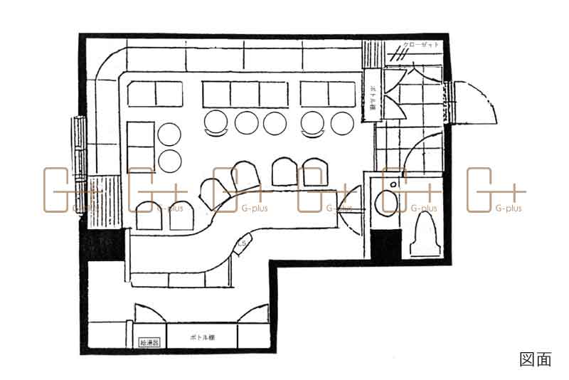
面積 | 39.67m² (12.00坪) |
坪単価(税込) | 49,500円 |
保証金 | 賃料の8ヵ月分 |
契約年数 | 定期借家2年 |
看板料(税込) | 19,800円 |
---|---|
募集階 | 3階(301号室) |
通り名 | 西五番街 |
取引形態 | 一般媒介 |
仲介手数料 | 賃料1ヶ月分+税 |
掲載日 | 2025-10-20 |
備考 | ■再契約料:新賃料の1ヵ月分(税別)及び再契約事務手数料50,000円(税別) ■解約料:2年以下の解約(満期含む)リース料の3ヵ月分(税別) 2年以上の解約(次回再契約以降)リース料の2ヵ月分(税別) ■解約予告:3ヵ月前 ■保証会社必須 |
その他 | ※2025年10月24日(金)から内覧可能 ※室内写真は以前募集時のものです。 |
この物件のおすすめポイント
銀座7丁目、西五番街にあるリース店舗です。ビル自体に多くのクラブ・バーが入居しており、同業種で出店されたい方へオススメ!
10坪前後の物件は大変人気です。内見は2025年10月24日(金)から可能です。気になる方はお早目に!