【No.G3007】銀座8丁目バルコニー付オフィス 4階
事務所| 物件管理No. | G3007 |
|---|---|
| 物件名 | 銀座8丁目バルコニー付オフィス 4階 |
| 所在地 | 中央区銀座8-12-11 地図を見る |
| 最寄り駅 | 「新橋」駅徒歩5分 「東銀座」駅徒歩7分 |
| 賃料(税込) | 701,514円 |
| 共益費(税込) | 賃料に含む |
| 賃料+共益費(税込) | 701,514円 |
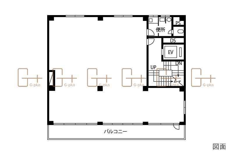
| 面積 | 117.12m² (35.43坪) |
| 坪単価(税込) | 19,800円 |
| 保証金 | 賃料の8ヵ月分 |
| 償却 | 保証金の10% |
| 契約年数 | 定期借家2年 |
| 看板料(税込) | 月額5,500円 |
|---|---|
| 募集階 | 4階 |
| 現況 | 空室 |
| 構造 | 鉄骨鉄筋コンクリート造 |
| 規模 | 地下1階 地上6階建 |
| 竣工 | 1958年3月 |
| 取引形態 | 一般媒介 |
| 仲介手数料 | 賃料1ヶ月分+税 |
| 掲載日 | 2026-04-27 |
| 備考 | ■看板の電気使用料を、別途ご負担いただきます。 ■指定会社と保証委託契約を締結していただきます。 ※与信状況によって預託金額が変動する場合がございます。 |
| 設備等 | EV:1基(6人乗) 空調:個別空調 トイレ:専用・男女共用・洋式 セキュリティ:機械警備 |
この物件のおすすめポイント
新橋駅から徒歩5分!銀座8丁目の閑静な場所にある事務所物件です。周辺は飲食店や郵便局等がありお仕事しやすい環境です。
バルコニーが付いているため休憩に最適!内見可能ですので是非ご検討下さい。














