【No.G2525】銀座8丁目外堀通りのビル 3階
店舗 事務所物件管理No. | G2525 |
---|---|
物件名 | 銀座8丁目外堀通りのビル 3階 |
所在地 | 中央区銀座8-2-11 地図を見る |
最寄り駅 | 「銀座」駅徒歩5分 |
賃料(税込) | 379,896円 |
管理費(税込) | 47,487円 |
賃料+管理費(税込) | 427,383円 |
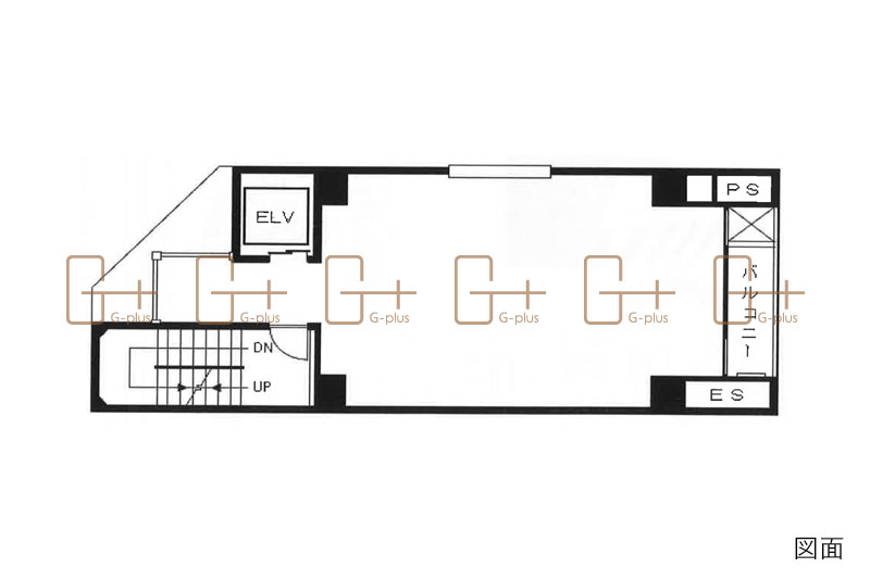
面積 | 47.57m² (14.39坪) |
坪単価(税込) | 26,400円 |
保証金 | 定額(賃料+管理費+看板料)の10ヵ月分 |
償却 | 中途解約:定額の6ヵ月分、満期解約:定額の3ヵ月分 |
契約年数 | 普通借家2年 |
更新料 | 定額(賃料+管理費+看板料)の1ヵ月分 |
---|---|
看板料(税込) | 11,000円 |
募集階 | 3階 |
現況 | 賃貸中(入居日:2025年11月下旬予定) |
構造 | 鉄骨鉄筋コンクリート造 |
規模 | 地下1階 地上10階建 |
通り名 | 外堀通り(西銀座通り) |
取引形態 | 一般媒介 |
仲介手数料 | 賃料1ヶ月分+税 |
掲載日 | 2025-10-20 |
備考 | ■飲食・物販・サービス・事務所可能 ■24時間営業応相談 ■保証会社加入必須 |
設備等 | ■導入:EV1基、共用階段 |
その他 | スケルトン |
この物件のおすすめポイント
東京メトロ丸ノ内線・銀座線・日比谷線「銀座」駅徒歩5分!外堀通り沿いの角地にあるビルです。
事務所はもちろん飲食店や物販、サービス店舗もご相談可能!お手頃賃料も魅力的です。是非お気軽にお問い合わせ下さい、