【No.G1534】銀座4丁目昭和通りの物件 4階
店舗 事務所| 物件管理No. | G1534 |
|---|---|
| 物件名 | 銀座4丁目昭和通りの物件 4階 |
| 所在地 | 中央区銀座4-10-6 地図を見る |
| 最寄り駅 | 「東銀座」駅徒歩1分 「銀座」駅徒歩3分 |
| 賃料(税込) | 相談 |
| 共益費(税込) | 賃料に含む |
| 賃料+共益費(税込) | 相談 |
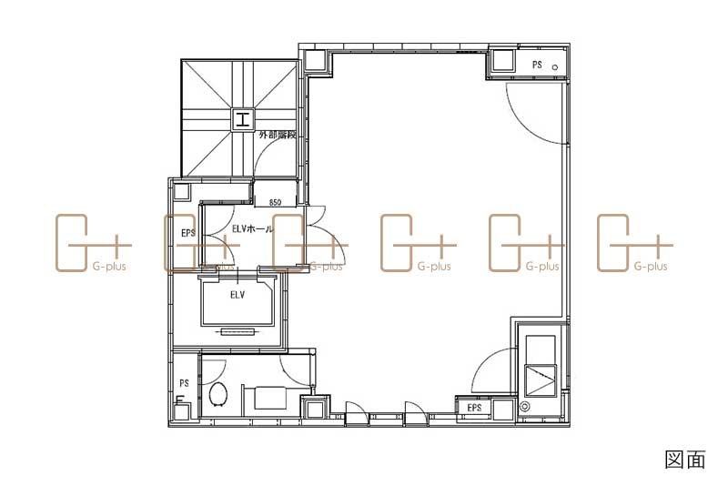
| 面積 | 46.09m² (13.94坪) |
| 坪単価(税込) | 相談 |
| 敷金 | 賃料の12ヵ月分 |
| 契約年数 | 定期借家(2028年2月29日まで) |
| 募集階 | 4階 |
|---|---|
| 現況 | 賃貸中(入居日:2026年6月1日) |
| 構造 | 鉄骨鉄筋コンクリート造 |
| 規模 | 地下1階 地上9階建 |
| 竣工 | 1990年(平成2年)11月 |
| 通り名 | 昭和通り |
| 取引形態 | 一般媒介 |
| 仲介手数料 | 賃料1ヶ月分+税 |
| 掲載日 | 2026-02-17 |
| 備考 | <諸費用> 電気料:個別メーターにて課金。 空調料:電気料の請求に含む。 水道料:個別メーターにて課金。※使用設備によっては共益費に含む。 清掃料:専用部清掃は指定業者と別途契約。 社名案内板:エントランスに社名案内板あり。案内板の作成費用はテナント負担。(色・字体:指定あり) その他実費:蛍光灯の交換、セキュリティカードの追加発行などは実費負担。 看板料:5,000円/月(1枠) ※1階ビル入口に外部看板枠あり、施工:ビル側指定業者(寸法統一の為)、デザイン:指定業者なし |
| 設備等 | 天井高:2,400mm OA床:50mm 床荷重:300kg/㎡ |
| その他 | <ビル開館時間> 開館時間は全日8:00~21:00 上記以外の時間帯もカードキーにて通用口より24時間入退館可能 年末年始等の開館日程は別途連絡 |
この物件のおすすめポイント
歌舞伎座タワーの正面!三原橋交差点からの視認性◎!昭和通り沿いにある事務所物件です。
最寄りの東銀座駅からは徒歩1分の好立地!銀座アドレスで物件をお探しの方へオススメです。賃料や業種等お気軽にお問い合わせ下さい。
同じビルの他のフロア
| 物件No. | 募集階 | 面積 | 賃料(税込) | 用途 | 詳細 |
|---|---|---|---|---|---|
| G1535 | 5階 | 46.09㎡ (13.94坪) |
相談 | 店舗オフィス | 詳細を見る |







