【No.G1121】銀座4丁目松屋通りの角地ビル 6階A室
店舗 事務所| 物件管理No. | G1121 |
|---|---|
| 物件名 | 銀座4丁目松屋通りの角地ビル 6階A室 |
| 所在地 | 中央区銀座4-8-2 地図を見る |
| 最寄り駅 | 「銀座」駅徒歩2分 「東銀座」駅徒歩2分 「銀座一丁目」駅徒歩4分 |
| 賃料(税込) | 462,000円 |
| 共益費(税込) | 賃料に含む |
| 賃料+共益費(税込) | 462,000円 |
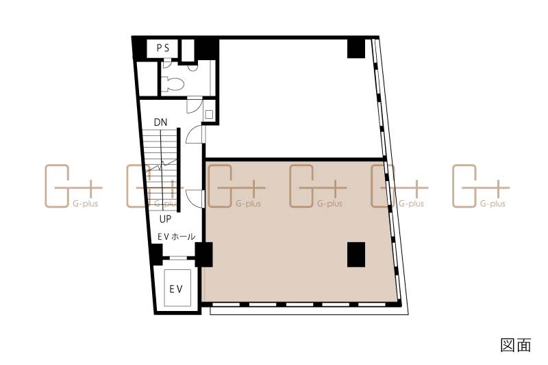
| 面積 | 57.86m² (17.50坪) |
| 坪単価(税込) | 26,396円 |
| 敷金 | 賃料の8ヵ月分 |
| 償却 | 退去時賃料の2ヵ月分 |
| 契約年数 | 定期借家2年(再契約可) |
| 更新料 | 再契約料:新賃料の1ヵ月分 |
|---|---|
| 募集階 | 6階A室 |
| 現況 | 賃貸中(入居日:2026年6月予定) |
| 構造 | SRC造 |
| 規模 | 地下1階 地上9階建 |
| 竣工 | 1961年(昭和36年) |
| 通り名 | 松屋通り |
| 取引形態 | 一般媒介 |
| 仲介手数料 | 賃料1ヶ月分+税 |
| 掲載日 | 2026-03-13 |
| 備考 | 保証会社:加入必須 解約予告:6ヵ月前 |
| 設備等 | トイレ(共用部) 個別空調 事務所仕様 光ケーブル(MDF迄) エレベーター1基 袖看板あり(16,500円/月) |
この物件のおすすめポイント
銀座4丁目、松屋通り角地の貸店舗・事務所です。シャープな外観と二面採光の明るい室内。
最寄りの東京メトロ銀座線「銀座」駅徒歩2分の立地です。業種のご相談だけでもお気軽にお問い合わせ下さい。
同じビルの他のフロア
| 物件No. | 募集階 | 面積 | 賃料(税込) | 用途 | 詳細 |
|---|---|---|---|---|---|
| G2482 | 4階B室 | 57.86㎡ (17.50坪) |
462,000円 | 店舗オフィス | 詳細を見る |











