【No.G0924】銀座1丁目あづま通りの美観ビル 1階
店舗 事務所| 物件管理No. | G0924 |
|---|---|
| 物件名 | 銀座1丁目あづま通りの美観ビル 1階 |
| 所在地 | 中央区銀座1-8-7 地図を見る |
| 最寄り駅 | 「銀座一丁目」駅徒歩2分 「銀座」駅徒歩5分 「京橋」駅徒歩4分 「宝町」駅徒歩5分 |
| 賃料(税込) | 1,687,840円 |
| 共益費(税込) | 賃料に含む |
| 賃料+共益費(税込) | 1,687,840円 |
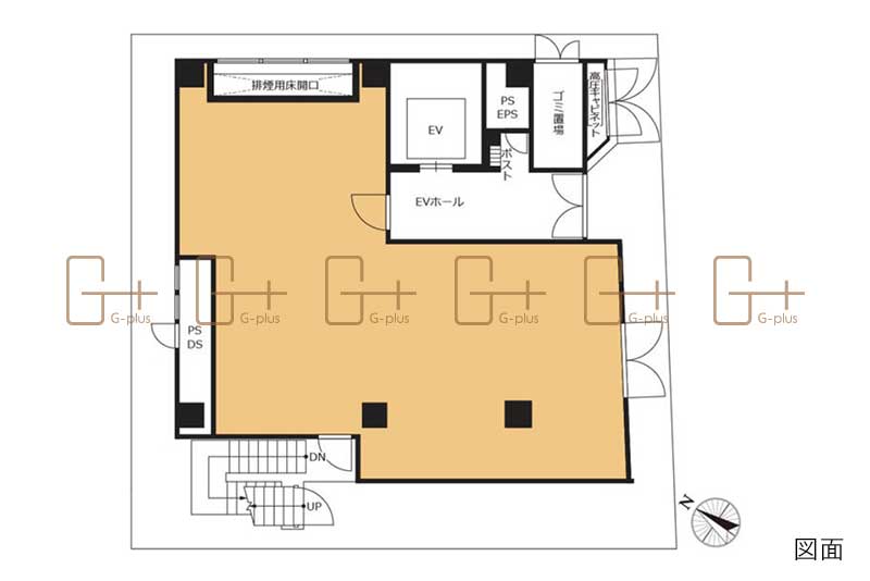
| 面積 | 72.47m² (21.92坪) |
| 坪単価(税込) | 76,992円 |
| 敷金 | 賃料の10ヵ月分 |
| 礼金 | 賃料の1ヵ月分 |
| 契約年数 | 定期借家5年 |
| 更新料 | 再契約料:新賃料の1ヵ月分 |
|---|---|
| 看板料(税込) | 22,000円 |
| 募集階 | 1階 |
| 現況 | 賃貸中(入居日:2026年7月22日予定) |
| 構造 | SRC造 |
| 規模 | 地下1階 地上9階建 |
| 竣工 | 2017年4月 |
| 通り名 | あづま通り |
| 取引形態 | 一般媒介 |
| 仲介手数料 | 賃料1ヶ月分+税 |
| 掲載日 | 2026-02-06 |
| 備考 | 保証会社・火災保険:要加入 |
| 設備等 | 内装スケルトン |
この物件のおすすめポイント
2017年竣工のキレイなビル。オシャレ×スタイリッシュな外観が特徴的で、駅からすぐの好立地です。
ONE GINZA(キラリトギンザ)の裏手にあり、中央通りも至近です。
銀座で1階路面店の物件をお探しの方はいかがでしょうか。業種はご相談下さいませ。




