【No.G0827】銀座3丁目の貸店舗事務所 3階
店舗 事務所| 物件管理No. | G0827 |
|---|---|
| 物件名 | 銀座3丁目の貸店舗事務所 3階 |
| 所在地 | 中央区銀座3-10-14 地図を見る |
| 最寄り駅 | 「東銀座」駅徒歩2分 「銀座」駅徒歩4分 「銀座一丁目」駅徒歩4分 |
| 賃料(税込) | 459,800円 |
| 共益費(税込) | 72,600円 |
| 賃料+共益費(税込) | 532,400円 |
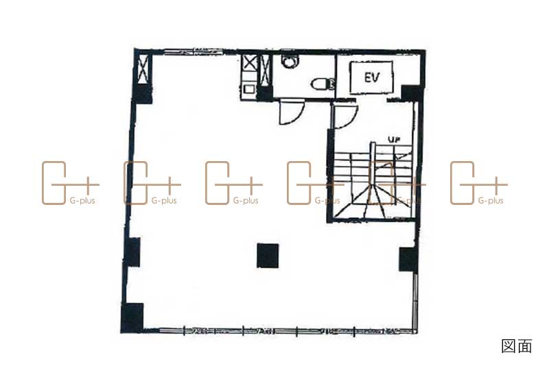
| 面積 | 72.73m² (22.00坪) |
| 坪単価(税込) | 20,900円 |
| 保証金 | 賃料の10ヵ月分 |
| 礼金 | 賃料の1ヵ月分 |
| 償却 | 賃料の2ヵ月分 |
| 契約年数 | 定期借家5年 |
| 更新料 | 再契約料:新賃料の1ヵ月分 |
|---|---|
| 看板料(税込) | 16,500円 |
| 募集階 | 3階 |
| 現況 | 空室 |
| 構造 | RC造 |
| 規模 | 地下1階 地上7階建 |
| 竣工 | 1962年2月 |
| 取引形態 | 一般媒介 |
| 仲介手数料 | 賃料1ヶ月分+税 |
| 掲載日 | 2026-03-02 |
| 備考 | 前テナント:マツエクサロン 使用時間制限:AM6:00~PM23:00 |
| 設備等 | 天井高2,420mm 室内トイレ エレベーター エアコン |
この物件のおすすめポイント
東京メトロ日比谷線・都営浅草線「東銀座」駅徒歩2分、東京メトロ銀座線「銀座」駅徒歩4分の立地です。
少し歩けば銀座三越や和光等銀座の中心地もすぐ!飲食店は不可ですが、サービス店舗のご相談が可能です。
前テナントはマツエクサロン。引渡しは事務所仕様です。








