【No.G0581】高級SALON&GYMの居抜き 9階
店舗 事務所| 物件管理No. | G0581 |
|---|---|
| 物件名 | 高級SALON&GYMの居抜き 9階 |
| 所在地 | 中央区銀座1-6-6 地図を見る |
| 最寄り駅 | 「銀座一丁目」駅徒歩3分 「京橋」駅徒歩6分 |
| 賃料(税込) | 750,000円 |
| 共益費(税込) | 賃料に含む |
| 賃料+共益費(税込) | 750,000円 |
| 面積 | 53.61m² (16.22坪) |
| 坪単価(税込) | 46,248円 |
| 保証金 | 6,000,000円 |
| 償却 | 賃料の1ヵ月分(3年以内は3ヵ月分) |
| 契約年数 | 普通借家3年 |
| 更新料 | 新賃料の1ヵ月分 |
|---|---|
| 募集階 | 9階 |
| 現況 | 空室 |
| 構造 | 鉄骨鉄筋コンクリート造 |
| 規模 | 地下1階 地上9階建 |
| 竣工 | 2011年(平成23年)7月 |
| 通り名 | 銀座ガス灯通り |
| 取引形態 | 一般媒介 |
| 仲介手数料 | 賃料1ヶ月分+税 |
| 掲載日 | 2026-02-05 |
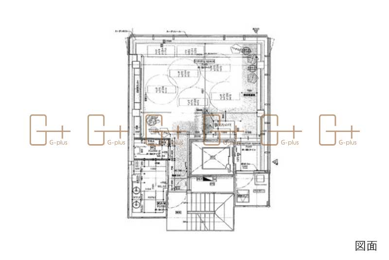
| 備考 | ・内見は平日にお願いしております。 ・保証会社要加入 ・引渡し:居抜き(前テナント:高級SALON&GYM) ・業種被り要相談(美容室不可) |
| 設備等 | 個別空調 エレベーター 電灯75A ガス無し |
この物件のおすすめポイント
東京メトロ有楽町線「銀座一丁目」駅からすぐ!銀座ガス灯通りに位置しているビルです。
ガラスウォールの高級感×オシャレな外観!窓面が大きいため、室内は明るく快適にご利用いただけます。
貴重な高級SALON&GYMの居抜き物件。是非内見してみて下さい。


















