【No.G0417】銀座7丁目賃貸事務所 703号室
事務所| 物件管理No. | G0417 |
|---|---|
| 物件名 | 銀座7丁目賃貸事務所 703号室 |
| 所在地 | 中央区銀座7-12-4 地図を見る |
| 最寄り駅 | 「銀座」駅徒歩4分 「新橋」駅徒歩6分 「有楽町」駅徒歩8分 |
| 賃料(税込) | 204,600円 |
| 管理費(税込) | 26,400円 |
| 賃料+管理費(税込) | 231,000円 |
| 面積 | 39.66m² (12.00坪) |
| 坪単価(税込) | 17,050円 |
| 保証金 | 賃料の6ヵ月分 |
| 償却 | 解約時賃料+管理費の2ヵ月分 |
| 契約年数 | 定期借家2年 |
| 更新料 | 再契約料:新賃料の1ヵ月分 |
|---|---|
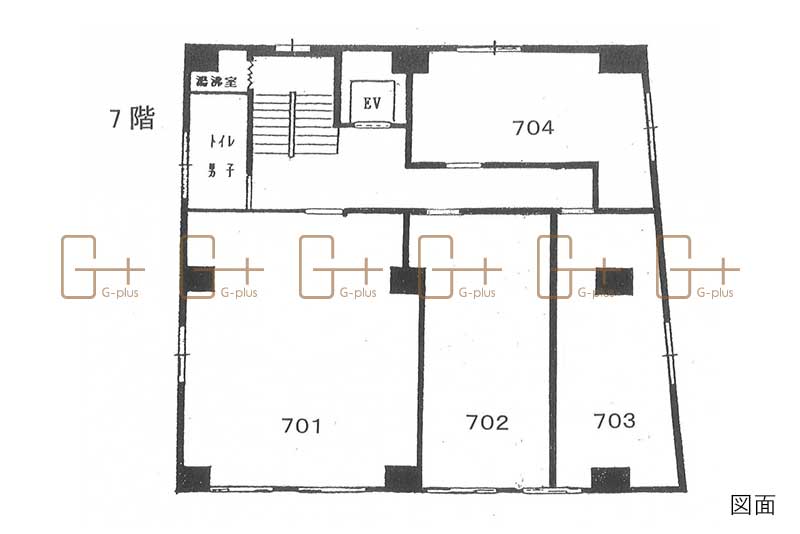
| 募集階 | 7階(703号室) |
| 現況 | 空室 |
| 構造 | SRC造 |
| 規模 | 地下1階 地上13階建 |
| 竣工 | 1965年(昭和40年)6月 |
| 取引形態 | 一般媒介 |
| 仲介手数料 | 賃料1ヶ月分+税 |
| 掲載日 | 2025-12-05 |
| 備考 | 解約予告:3ヵ月前 保証会社:加入必須 |
| 設備等 | エレベーター 個別空調 ビル入口:自動シャッター、防犯カメラ2台設置 24時間利用可能 光ケーブル(MDFまで) 男女別室外トイレ(階別) |
この物件のおすすめポイント
銀座7丁目に位置する賃貸事務所です。
歴史のあるビルですがしっかりとした造りで、メンテナンスも行き届いている印象です。
すぐ近くにはGINZA SIXがあり、お仕事帰りには銀座を楽しむことができますよ。
銀座・新橋エリアで物件をお探しの方は弊社までお問い合わせ下さい。









